產品名稱:消防專用電磁閥
型 號:ZSCP
適用介質:清水
環境溫度:Max.+60℃
介質溫度:5℃~55℃
聯系電話:15901687301
產品詳情:
制造標準:中國GB、機械部JB、化工標準HG、美標API、ANSI、德標DIN、日本JIS、JPI、英標BS生產。
閥體材質:銅、鑄鐵、鑄鋼、碳鋼、WCB、WC6、WC9、20#、25#、鍛鋼、A105、F11、F22、不銹鋼、304、304L、316、316L、鉻鉬鋼、低溫鋼、鈦合金鋼等。
工作壓力:1.0Mpa-50.0Mpa。
工作溫度:-196℃-650℃。
連接方式:內螺紋、外螺紋、法蘭、焊接、對焊、承插焊、卡套、卡箍。
驅動方式:手動、氣動、液動、電動。
上海惠夏閥門有限公司擁有全球最頂尖的生產設備和技術工程師,有能力按照各國標準以及各種行業標準生產制造優質閥門。
產品特點及功能:
本產品為自動跟蹤定位射流滅火系統專用消防電磁閥,執行GB《自動噴水滅火系統-通用閥門》標準,已通過公安部“國家固定滅火系統和耐火構件質量監督檢測中心”型式檢測。高可靠性電磁閥采用活塞型先導式結構,超大先導孔,不結垢、不生銹,啟閉迅速,性能可靠,克服現有電磁閥的各種弊端。廣泛應用于體育場館、展覽館、工業標準廠房及各類大空間滅火系統的配套產品。
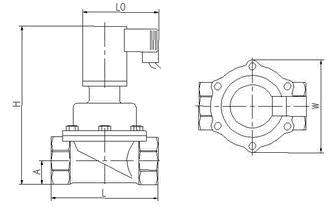
外形尺寸及技術參數:

|
閥體、閥蓋材質
|
304不銹鋼
|
|
閥桿材質
|
聚四氟
|
|
密封件
|
三元乙丙
|
|
適用介質
|
清水
|
|
環境溫度
|
Max.+60℃
|
|
介質溫度
|
5℃~55℃
|
|
電壓
|
AC220V/50Hz DC24V
其它電壓可訂制
|
|
電壓范圍
|
-15% ~ +10%
|
|
型號
|
DN25
|
DN50
|
|
聯接方式
|
G1〞
|
G2〞
|
|
L(長)㎜
|
100 |
155 |
|
W(寬)㎜
|
72 |
135 |
|
H(高)㎜
|
160 |
232 |
|
L0 ㎜
|
100 |
110 |
|
A ㎜
|
20.5 |
34.5 |
|
公稱通徑DN(㎜)
|
25 |
50 |
|
流量系數Kv>
|
90 |
30 |
|
功率 |
AC220
|
啟動功率200W,工作3W
|
啟動功率350W,工作10W
|
|
DC24
|
啟動功率75W,工作20W
|
啟動功率85W,工作25W
|
|
公稱壓力(MPa)
|
1.6
|